Professionalità e Passione per le Case
Toggle navigation
Home
Properties
Sales
Rentals
Commercial properties
Turistic
About us
Services
Contacts
Compact real estate search panel
Expand real estate search panel
Type
Sales
Rentals
Commercial properties
Turistic
Category
Any
1br. apartment
2br. apartment
3br. or more apartment
Agricultural land
Apartment
Attic
Boat Place
Building land
Castle
Cellar
Chalet
Duplex
Estate
Family Villa
Farm
Garage
Hotel
Laboratory
Land
Loft
Maisonette
Mansard
Office
Palace
Parking Place
Portion of villa
Rustic
Semi-Detached House
Shed
Shop
Single house
Studio/flat
Terraced house
Villa
Warehouse
City
All
Ardesio (BG)
Cerete (BG)
Clusone (BG)
Gandellino (BG)
Gorno (BG)
Gromo (BG)
Parre (BG)
Piario (BG)
Ponte Nossa (BG)
Premolo (BG)
Rovetta (BG)
Valbondione (BG)
Valgoglio (BG)
Villa d'Ogna (BG)
Zone
All
Price (from - to)
Sqm (from - to)
Code
Order
Insert
Code
Category
City
Zone
Price
Square Meters
Search
Three-room apartment in the center of Gorno
39,000 €
60 m
2
2 Bedrooms
2 Bathrooms
Previous
Next
Photos
Floorplans
Virtual tour 360°
Code
3C_GORNO_01
City
Gorno
Category
2 bedroom apartment
Locals
3
Sqm balcon
12
Anno ristrutturazione
2009
Energetic class
Under evaluation
Property Conditions
Renovated
Rank
Cheap
Position
Inner City
Free Sides
2
Furniture
Not Furnished
Fixtures
Metal double glazed
Doors
Excellent
Accessories
Double Glazing
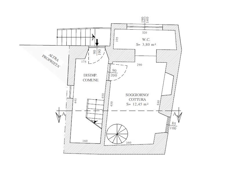
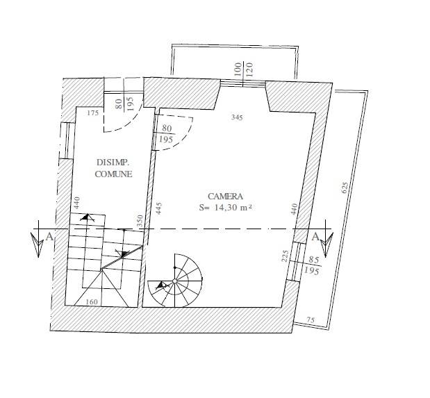
Gorno, in the central area, house with independent entrance.
The property consists of:
- living room, open kitchen and bathroom on the first floor;
- bedroom on the second floor;
- bedroom with bathroom on the third floor.
Each floor is connected internally by a spiral staircase.
No condominium fees, central and served location.
Virtual tour 360°
Map
Piazza Erdeno 4 , Gorno (BG)
Options
Send property sheet by mail
Information request
Name *
Phone *
E-mail *
Request Details *
I authorize the processing of my personal data according Regolamento UE n. 679/2016
Privacy Policy
Autorizzo al trattamento dei dati per finalità di marketing, attività promozionali, offerte commerciali ed indagini di mercato.
Send
Share
Tweet
Keep default settings X
Use of cookies
This site uses cookies. Our (own) cookies and those of our Partners (third party cookies) are used to offer you a unique experience with us. For this reason, together with our partners, we collect and process non-sensitive information (such as the identifier of your device or the pages you visit).
At any time you can delete, modify or verify the information you share in
Cookie preference
or in our
Cookie Policy
and
Privacy Policy
.
Necessary
Functional
Profiling
Analytics
Accept all
Decline all
Accept selected
Cookie preference