Italiano English
Professionalità e Passione per le Case

Three-room apartment in Valbondione

45,000 €
55 m2
2 Bedrooms
1 Bathrooms
Code
3_B_VALB01
City
Valbondione
Category
2 bedroom apartment
Locals
3
Car places
1
Sqm balcon
3
Floor
2
Energetic class
Under evaluation
Property Conditions
Old
Rank
Cheap
Position
Mountain
View
Mount View
Orientation
North East South
Free Sides
3
Furniture
Not Furnished
Type living
Living room
Kitchen
Open Kitchen
Heating
Independent
Heating Type
Boiler
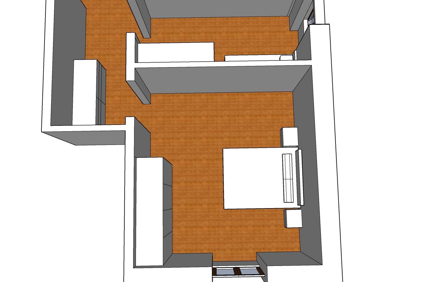
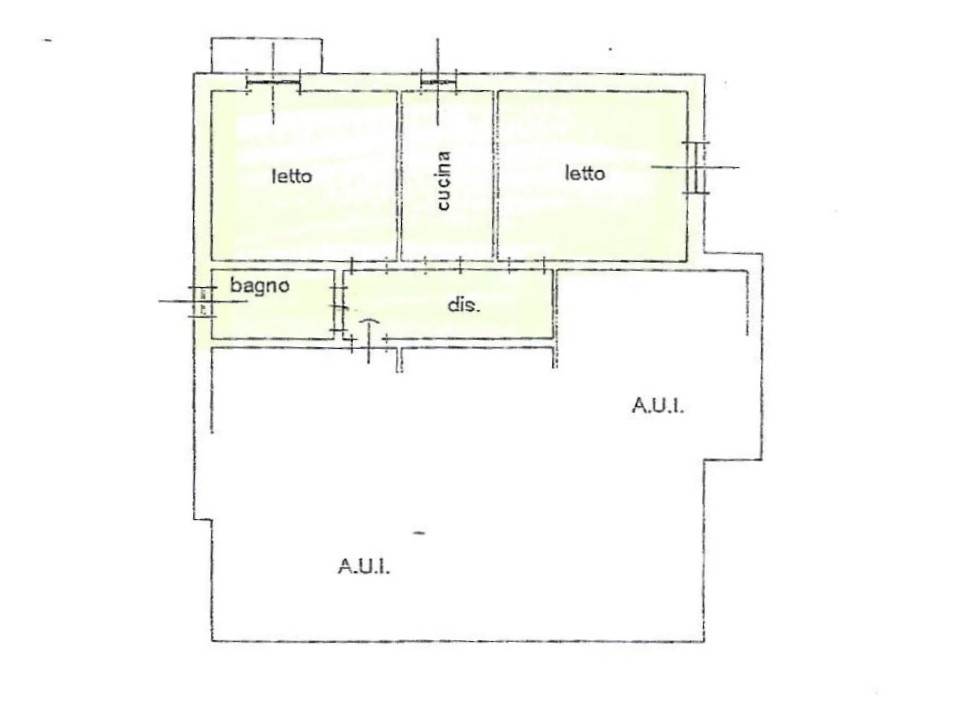
In the splendid mountain resort of Valbondione in the upper Seriana Valley (BG), we offer for sale a three-room apartment on the second floor of a small building, without condominium fees.

The apartment is located in a quiet and well-served area, ideal for those looking for a welcoming and comfortable place to live or spend their holidays.

The real estate solution offers an excellent quality-price ratio, with the possibility of customizing the spaces according to your needs.
It is currently configured as a two-room apartment with kitchen but there is the possibility of converting it into a three-room apartment with two bedrooms.

Contact us for further information and to organize a visit to the apartment without obligation!

Map

Via Redorta 8, Valbondione (BG)

Information request

Send

Share

Cookie preference