Italiano English
Professionalità e Passione per le Case

Bilocale ristrutturato in palazzo storico a Gandellino

59.000 €
50 m2
1 Camere
1 Bagni
Codice
2GAND_07
Città
Gandellino
Categoria
2 locali
Locali
2
Posti auto
1
Piano
Rialzato
Classe energetica
G
251,09
Stato Immobile
Ottimo
Grado
Signorile
Posizione
Montagna
Panorama
Vista Monti
Lati Liberi
2
Giardino
Comune
Arredi
Arredato
Tipo Soggiorno
Soggiorno
Tipo Cucina
A Vista
Riscaldamento
Autonomo
Tipo Riscaldam.
Caldaia
Tipo Impianto
Radiatori
Fonte Energetica
Metano
Acqua Calda
Autonoma
Raffrescamento
No
Infissi
Legno Doppio Vetro
Serramenti
Ottimo
Accessori
Doppi Vetri
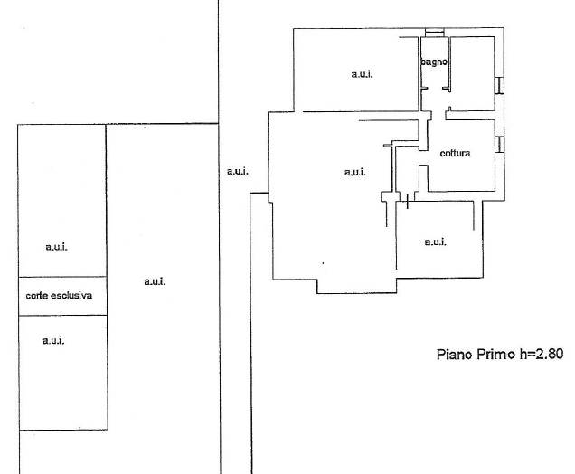
Nell' incantevole comune montano di Gandellino, incastonato nelle Prealpi Orobiche Bergamasche, proponiamo in vendita bilocale di circa 50 mq con cantina e posto auto!
E' situato in una posizione strategica vicino al centro del paese e immerso nel verde; tramite un ponticello si accede direttamente alla pista ciclopedonale che collega tutta l'alta valle!

L'appartamento, facente parte di palazzo storico dell'Enel, è stato completamente ristrutturato ed internamente è così composto:
- a piano rialzato, con ingresso dall'androne in comune attrezzato con comodo salottino troviamo ingresso, zona giorno con cucina a vista, disimpegno, camera matrimoniale e bagno finestrato;
- a piano terra, posto auto;
- a piano seminterrato troviamo una cantina.

La soluzione è ben tenuta e viene venduta arredata!

A Gandellino troverete diversi servizi come banca, benzinaio, ristorante, ufficio turistico e negozi d'alimentari.
Gandellino è attraversato dal fiume Serio e dalla pista ciclopedonale che collega tutta l'Alta Val Seriana!

Qui troverete il Sentiero delle Orobie, dove si possono raggiungere alcune cime delle prealpi bergamasche: i monti Redorta, Grabiasca, Brunone, e Cardeto.
Si possono così raggiungere i numerosi laghi alpini e rifugi: Laghi di Cardeto, Passo della Portula, Curò e Coca (da Valbondione), Brunone (da Fiumenero), Calvi (da Ripa di Gromo), Alpe Corte e Laghi Gemelli (da Valcanale); proprio da quest'ultimo ha inizio anche il sentiero dei rifugi delle Orobie, che si conclude all'Albani.

L'appartamento rappresenta una soluzione ideale per scoprire e vivere le bellezze dell'Alta Valle, con i suoi borghi storici, attrattive culturali, tradizioni religiose e popolari, nonchè le diverse attività sportive e ricreative.

Non esitare a contattarci per ulteriori informazioni o per organizzare una visita all'immobile.

Virtual tour 360°

Video

Mappa

Via Provinciale 9, Gandellino (BG)

Richiedi informazioni

Invia

Condividi

Cookie preference