Italiano English
Professionalità e Passione per le Case

Villa singola unifamiliare con giardino!

140.000 €
180 m2
3 Camere
1 Bagni
Codice
V_GAND_04
Città
Gandellino
Categoria
Villa
Locali
5
Box
1
Mq Box
43
Mq Giardino
500
Mq Balcone
3
Piano
Terra
Anno costruzione
1960
Classe energetica
In fase di valutazione
Stato Immobile
Buono
Grado
Economico
Posizione
Montagna
Panorama
Vista Monti
Orientamento
Nord Ovest Sud Est
Lati Liberi
4
Giardino
Privato
Arredi
Arredato
Tipo Soggiorno
Soggiorno
Tipo Cucina
Abitabile
Riscaldamento
Autonomo
Tipo Riscaldam.
Caldaia
Tipo Impianto
Radiatori
Acqua Calda
Autonoma
Infissi
Legno Doppio Vetro
Serramenti
Buono
Accessori
Doppi Vetri, Lavanderia, Ripostiglio
Nell' incantevole comune montano di Gandellino, incastonato nelle Prealpi Orobiche Bergamasche, proponiamo in vendita villa singola unifamiliare con giardino privato e box doppio!

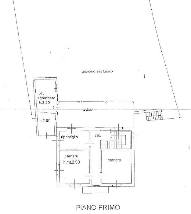
La soluzione si sviluppa su tre livelli fuori terra ed è così composta:
- a piano terra troviamo box doppio, cortile pianeggiante con porfido, orto, giardino privato di circa 500 mq non pianeggiante, piccola depandance (utilizzata per lavanderia e servita da camino ideale per grigliate o per le caldarroste!), ingresso, soggiorno, cucina abitabile, bagno e ripostiglio;
- a piano primo troviamo balcone panoramico, tre camere di cui due matrimoniali ed una singola che attualmente ospita 4 posti letto;
- a piano secondo, sottotetto.

Negli anni sono stati eseguiti dei lavori di ristrutturazione al piano terra; tra le varie migliorie abbiamo la ristrutturazione del bagno e la creazione dell'impianto di riscaldamento a caloriferi. A piano secondo attualmente non è presente il riscaldamento con caloriferi.

Gli spazi generosi, il cortile ed il giardino sono il punto forte dell'abitazione potendo essere sfruttati in diversi modi secondo le proprie esigenze.

Altro punto forte è sicuramente la posizione centrale comoda sia per i servizi sia per passeggiare in mezzo alla natura costeggiando il fiume sulla pista ciclopedonale.

A Gandellino troverete diversi servizi come banca, ristorante, ufficio turistico e negozi d'alimentari.
Gandellino è attraversato dal fiume Serio e dalla pista ciclopedonale che collega tutta l'Alta Val Seriana!

Qui troverete il Sentiero delle Orobie, dove si possono raggiungere alcune cime delle prealpi bergamasche: i monti Redorta, Grabiasca, Brunone, e Cardeto.
Si possono così raggiungere i numerosi laghi alpini e rifugi: Laghi di Cardeto, Passo della Portula, Curò e Coca (da Valbondione), Brunone (da Fiumenero), Calvi (da Ripa di Gromo), Alpe Corte e Laghi Gemelli (da Valcanale); proprio da quest'ultimo ha inizio anche il sentiero dei rifugi delle Orobie, che si conclude all'Albani.

La villa rappresenta una soluzione ideale per scoprire e vivere le bellezze dell'Alta Valle, con i suoi borghi storici, attrattive culturali, tradizioni religiose e popolari, nonchè le diverse attività sportive e ricreative.

Non esitare a contattarci per ulteriori informazioni o per organizzare una visita all'immobile.

Virtual tour 360°

Video

Mappa

Via cornela 3, Gandellino (BG)

Richiedi informazioni

Invia

Condividi

Cookie preference